Проект №24 Дом с мансардой 7,5х8

каркас из строганой доски
Создайте свой план для этого проекта
и отправьте его нам на расчет в один клик.
Каркасный дом (150 мм) 7,5х8 Толщина утепления 150 мм 2626700 Заказать
Каркасный дом (200 мм) 7,5х8 Толщина утепления 200 мм 2879900 Заказать

Доставка включена в стоимость дома!

Воспользуйтесь нашим планировщиком, чтобы получить индивидуальную планировку.

С помощью планировщика вы сможете создавать чертежи, схемы, планы, эскизы вашего будущего дома с эркером, мансардой, с необходимым числом комнат. Таким образом вы сможете получить индивидуальный проект с планировкой, который отвечает вашим условиям.

Вы сможете подобрать необходимый вид кровли. Вашу крышу можно сделать двускатной, четырехскатной и вальмовой. Двухскатная крыша - особенно популярна в небольших домах.

Самые популярные размеры на текущий момент: мини - до 50 квадратных метров (в большинстве случаев, 1 этажные); компактные - от 70 квадратных метров до 100 квадратов (обычно двухэтажные); большие - от 150 квадратов и более.

Строим дуплексы - большие современные каркасные постройки с двумя входами, рассчитанные на несколько семей. Дома строятся для двух хозяев, они поделены на две половины, для каждой половины - свой вход.


Наши работы

Перейти в галерею


Комплектация

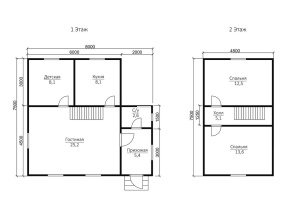
Площадь застройки: 60 м2
Длина: 7.5 м
Ширина: 8 м
Общая площадь: 70.43 м2
Исполнение Под ключ (с отделкой)
Фундамент Свайно-винтовой или ж/б сваи (рассчитываются отдельно).
Гидроизоляция фундамента Рубероид в два слоя.
Основание (обвязка) Из обрезного бруса 150х150 мм. 150х200 мм. согласно выбранной толщине утепления. Торцевая доска строганая 45х145/45х195+/-5 мм. согласно выбранной толщине утепления. Обработка антисептиком.
Цокольное перекрытие Строганая доска камерной сушки 45х145/45х195+/-5 мм. с шагом 590 мм. Обработка антисептиком.
Пол черновой Обрезная доска камерной сушки 20х100 мм.
Влаго-ветрозащита чернового пола Мембрана Ондутис А100.
Внешние стены Стойки каркаса из строганой доски камерной сушки 45х145/45х195+/-5 мм. с шагом 590 мм. Верхняя двойная и нижняя обвязки из строганой доски камерной сушки 45х145/45х195+/-5 мм. Разгрузочный ригель из строганой доски 45х145+/-5 мм. Укосины из строганой доски 20х95 мм.
Перегородки Стойки каркаса из строганой доски камерной сушки 45х95+/-5 мм. с шагом 590 мм. Верхняя двойная и нижняя обвязки из строганой доски 45х95+/-5 мм. Разгрузочный ригель из строганой доски камерной сушки 45х145+/-5 мм. Укосины из строганой доски камерной сушки 20х95 мм.
Сборка каркаса На гвозди.
Высота от пола до потолка Дом одноэтажный: 2,5 м. Дом с мансардой: 1-ый этаж- 2,5 м.
2-ой этаж (мансарда)- 2,3 м.
Дом в полтора и два этажа:
1-ый этаж 2,5 м.
2-ой этаж 2,4 м. в полутораэтажном доме
2,5 м. в двухэтажном доме.
Внешняя отделка стен Имитация бруса камерной сушки, сорт АВ, толщиной 17 мм. Монтаж через строганый брусок камерной сушки 45х45+/-5 мм. (вентилируемый фасад). Влаго-ветрозащитная мембрана- Ондутис А100.
Внутренняя отделка стен, перегородок Евровагонка камерной сушки, сорт АВ, толщиной 12,5 мм. по строганой рейке 20х40+/-5 мм. либо ГКЛ 12,5 мм.
Отделка потолка Евровагонка камерной сушки, сорт АВ толщиной, 12,5 мм. по строганой рейке 20х40+/-5 мм. либо ГКЛ 12,5 мм.
Пол чистовой Шпунтованная доска камерной сушки толщиной 35-36 мм. сорт АВ. по строганой рейке 20х40+/-5 мм. либо шпунтованная ДСП 16 мм. по разряженной обрешётке из строганой доски камерной сушки 20х95+/-5 мм.
Утепление (пол, потолок) Минеральная вата Knauf 150/200 мм. согласно выбранной толщине утепления.
Утепление стен Плитный утеплитель Rockwool, толщиной 150/200 мм. согласно выбранной толщине утепления.
Звукоизоляция перегородок Плитный утеплитель Rockwool, толщиной 100 мм.
Пароизоляция (стены, перегородки, пол, потолок) Плёнка Ондутис R70. Дополнительная герметизация нахлёстов/примыканий пароизоляционной плёнки клейкой лентой Delta.
Окна Двухкамерные стеклопакеты ПВХ белого цвета, профиль 60 мм. В комплекте: отливы, подоконники, москитные сетки.
Двери Входная- металлическая, утеплённая (Россия). Межкомнатные- филёнчатые.
Наличники на окна и двери Наличник деревянный, строганый, камерной сушки 70-90 мм. с двух сторон.
Лестница (при наличии второго этажа) Деревянная, одно или двухмаршевая. Перила- заводские резные, балясины- заводские точеные, устанавливаются стартовые точёные столбы. Ступени 40х200 мм. Тетива лестницы- 90х140 мм.
Крыша Двускатная, ломаная или вальмовая в соответствии с проектом.
Стропильная система Выполнена из строганой доски камерной сушки 45х145/45х195+/-5 мм. Шаг установки стропил 590 мм.
Обрешётка Выполняется из строганой доски камерной сушки толщиной 20х95+/-5 мм. Шаг крепления обрешетки 350 мм. Контробрешётка выполняется из строганого бруска камерной сушки 45х45+/-5 мм. Крепится по стропилам (вентиляционный зазор).
Подкровельная мембрана Ондутис А100
Кровельное покрытие (на выбор) Металлочерепица 0,45 мм. Цвет на выбор.
Фронтоны (при наличии) Каркас из строганой доски камерной сушки 45х145/45х195+/-5 мм. Обшиваются имитацией бруса камерной сушки, сорт АВ, толщиной 17 мм. Монтаж через строганый брусок камерной сушки 45х45+/-5 мм. (вентилируемый фасад). Влаго-ветрозащитная мембрана- Ондутис А100. Монтаж вентиляционных решёток.
Свесы крыши Ширина 400 мм. Подшиваются вагонкой камерной сушки, сорт АВ.
Терраса/балкон (при наличии) Устанавливаются опорные столбы из строганного бруса камерной сушки 140х140 мм.
Отделка потолка террасы/балкона Евровагонка камерной сушки толщиной 12,5 мм. сорт АВ.
Пол террасы/балкона Шпунтованная доска камерной сушки толщиной 35-36 мм. сорт АВ.
Ограждение террасы/балкона Перила- строганая доска. Балясины- точеные, фигурные. Либо ограждение в скандинавском стиле. Устанавливаются ступени у входа.
Допуск на геометрические параметры Составляет +/- 50 мм по длине с каждой стороны.
Допускается стыковка имитации бруса, вагонки и половой доски По всему периметру стен дома (если ширина и длина дома более 6,0 метров). Вагонки и доски пола в каждой отдельной комнате.
Допуски по имитации бруса, вагонке, доске +/- 5 мм.
В стоимость включена Доставка комплекта материала в радиусе 500 км. от г. Пестова Новгородской области и сборка дома на вашем участке.
Гарантия 5 лет.
Бытовка строительная 2,0х3,0 м. каркасно-щитовая. Стоимость 23000 руб. Остаётся на участке Заказчика.
Туалет 1,0х1,0 м. каркасно-щитовой. Стоимость 12000 руб. Остаётся на участке Заказчика.
Генератор Стоимость аренды на весь срок строительства 15000 руб. ГСМ за счёт Заказчика.

Сооружение каркасного дома выполняется в двух видах: сразу под ключ и под усадку, когда дом отстаивается на протяжении определенного времени.

Зимой эксперты советуют строить дом в мороз, чтобы каркас не отсырел, в летний период - не под дождем.

Оптимальными для сада или дачи стали дома на винтовых сваях, у нас можно найти одноэтажные и полуторатажные варианты.

При условии, что дом строится для ПМЖ (постоянного проживания), советуем надежные и очень теплые дома на ленточных и плитных фундаментах.

Существует 2 размера утепления: 200 мм и 150 мм. Каркасные дома с толщиной утеплителя 200 мм получаются теплее, но несколько дороже.

Дополнительные услуги


Каркасник , согласно плану 24 полутораэтажный с теплоизоляционной двускатной разновидностью крыши, обращает на себя повышенное внимание экологической безопасностью, за счет использования стружечных плит, теплоизоляционной ваты, что создает первоклассную теплоизоляцию, комфортный микроклимат в доме. Нормы жилища составляют 7,5х8 м., суммарная жилая площадь - 70.43 кв.м.. Наша организация в минимальные сроки создаст для вас каркасник по индивидуальному или типовому чертежу в Ялте в оптимальное для вас время года и на любом варианте грунта.

Популярные проекты


Каркасные дома 4х10 Каркасные дома 9х9 Каркасные дома 6х8
хит продаж
Тип:
Общая площадь: 2
2687880
от 2559900
хит продаж
Тип: с большой террасой
Общая площадь: 2
4479600
от 4266300
хит продаж
Тип:
Общая площадь: 2
2939880
от 2799900
Дома из бруса

Заказать или задать вопрос



Заказать или задать вопрос

Заказать звонок