Проект №94 Каркасный дом с террасой и балконом 6х7

каркас из строганой доски
Создайте свой план для этого проекта
и отправьте его нам на расчет в один клик.
Каркасный дом (150 мм) 6х7 Толщина утепления 150 мм 2649900 Заказать
Каркасный дом (200 мм) 6х7 Толщина утепления 200 мм 2893100 Заказать

Доставка включена в стоимость дома!

Воспользуйтесь нашим планировщиком, чтобы получить индивидуальную планировку.

С помощью планировщика вы сможете создавать чертежи, схемы, планы, эскизы вашего будущего дома с эркером, мансардой, с необходимым числом комнат. Таким образом вы сможете получить индивидуальный проект с планировкой, который отвечает вашим условиям.

Вы сможете подобрать необходимый вид кровли. Вашу крышу можно сделать двускатной, четырехскатной и вальмовой. Двухскатная крыша - особенно популярна в небольших домах.

Самые популярные размеры на текущий момент: мини - до 50 квадратных метров (в большинстве случаев, 1 этажные); компактные - от 70 квадратных метров до 100 квадратов (обычно двухэтажные); большие - от 150 квадратов и более.

Строим дуплексы - большие современные каркасные постройки с двумя входами, рассчитанные на несколько семей. Дома строятся для двух хозяев, они поделены на две половины, для каждой половины - свой вход.


Наши работы

Перейти в галерею


Комплектация

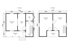
Площадь застройки: 42 м2
Длина: 7 м
Ширина: 6 м
Общая площадь: 77 м2
Исполнение Под ключ (с отделкой)
Фундамент Свайно-винтовой или ж/б сваи (рассчитываются отдельно).
Гидроизоляция фундамента Рубероид в два слоя.
Основание (обвязка) Из обрезного бруса 150х150 мм. 150х200 мм. согласно выбранной толщине утепления. Торцевая доска строганая 45х145/45х195+/-5 мм. согласно выбранной толщине утепления. Обработка антисептиком.
Цокольное перекрытие Строганая доска камерной сушки 45х145/45х195+/-5 мм. с шагом 590 мм. Обработка антисептиком.
Пол черновой Обрезная доска камерной сушки 20х100 мм.
Влаго-ветрозащита чернового пола Мембрана Ондутис А100.
Внешние стены Стойки каркаса из строганой доски камерной сушки 45х145/45х195+/-5 мм. с шагом 590 мм. Верхняя двойная и нижняя обвязки из строганой доски камерной сушки 45х145/45х195+/-5 мм. Разгрузочный ригель из строганой доски 45х145+/-5 мм. Укосины из строганой доски 20х95 мм.
Перегородки Стойки каркаса из строганой доски камерной сушки 45х95+/-5 мм. с шагом 590 мм. Верхняя двойная и нижняя обвязки из строганой доски 45х95+/-5 мм. Разгрузочный ригель из строганой доски камерной сушки 45х145+/-5 мм. Укосины из строганой доски камерной сушки 20х95 мм.
Сборка каркаса На гвозди.
Высота от пола до потолка Дом одноэтажный: 2,5 м. Дом с мансардой: 1-ый этаж- 2,5 м.
2-ой этаж (мансарда)- 2,3 м.
Дом в полтора и два этажа:
1-ый этаж 2,5 м.
2-ой этаж 2,4 м. в полутораэтажном доме
2,5 м. в двухэтажном доме.
Внешняя отделка стен Имитация бруса камерной сушки, сорт АВ, толщиной 17 мм. Монтаж через строганый брусок камерной сушки 45х45+/-5 мм. (вентилируемый фасад). Влаго-ветрозащитная мембрана- Ондутис А100.
Внутренняя отделка стен, перегородок Евровагонка камерной сушки, сорт АВ, толщиной 12,5 мм. по строганой рейке 20х40+/-5 мм. либо ГКЛ 12,5 мм.
Отделка потолка Евровагонка камерной сушки, сорт АВ толщиной, 12,5 мм. по строганой рейке 20х40+/-5 мм. либо ГКЛ 12,5 мм.
Пол чистовой Шпунтованная доска камерной сушки толщиной 35-36 мм. сорт АВ. по строганой рейке 20х40+/-5 мм. либо шпунтованная ДСП 16 мм. по разряженной обрешётке из строганой доски камерной сушки 20х95+/-5 мм.
Утепление (пол, потолок) Минеральная вата Knauf 150/200 мм. согласно выбранной толщине утепления.
Утепление стен Плитный утеплитель Rockwool, толщиной 150/200 мм. согласно выбранной толщине утепления.
Звукоизоляция перегородок Плитный утеплитель Rockwool, толщиной 100 мм.
Пароизоляция (стены, перегородки, пол, потолок) Плёнка Ондутис R70. Дополнительная герметизация нахлёстов/примыканий пароизоляционной плёнки клейкой лентой Delta.
Окна Двухкамерные стеклопакеты ПВХ белого цвета, профиль 60 мм. В комплекте: отливы, подоконники, москитные сетки.
Двери Входная- металлическая, утеплённая (Россия). Межкомнатные- филёнчатые.
Наличники на окна и двери Наличник деревянный, строганый, камерной сушки 70-90 мм. с двух сторон.
Лестница (при наличии второго этажа) Деревянная, одно или двухмаршевая. Перила- заводские резные, балясины- заводские точеные, устанавливаются стартовые точёные столбы. Ступени 40х200 мм. Тетива лестницы- 90х140 мм.
Крыша Двускатная, ломаная или вальмовая в соответствии с проектом.
Стропильная система Выполнена из строганой доски камерной сушки 45х145/45х195+/-5 мм. Шаг установки стропил 590 мм.
Обрешётка Выполняется из строганой доски камерной сушки толщиной 20х95+/-5 мм. Шаг крепления обрешетки 350 мм. Контробрешётка выполняется из строганого бруска камерной сушки 45х45+/-5 мм. Крепится по стропилам (вентиляционный зазор).
Подкровельная мембрана Ондутис А100
Кровельное покрытие (на выбор) Металлочерепица 0,45 мм. Цвет на выбор.
Фронтоны (при наличии) Каркас из строганой доски камерной сушки 45х145/45х195+/-5 мм. Обшиваются имитацией бруса камерной сушки, сорт АВ, толщиной 17 мм. Монтаж через строганый брусок камерной сушки 45х45+/-5 мм. (вентилируемый фасад). Влаго-ветрозащитная мембрана- Ондутис А100. Монтаж вентиляционных решёток.
Свесы крыши Ширина 400 мм. Подшиваются вагонкой камерной сушки, сорт АВ.
Терраса/балкон (при наличии) Устанавливаются опорные столбы из строганного бруса камерной сушки 140х140 мм.
Отделка потолка террасы/балкона Евровагонка камерной сушки толщиной 12,5 мм. сорт АВ.
Пол террасы/балкона Шпунтованная доска камерной сушки толщиной 35-36 мм. сорт АВ.
Ограждение террасы/балкона Перила- строганая доска. Балясины- точеные, фигурные. Либо ограждение в скандинавском стиле. Устанавливаются ступени у входа.
Допуск на геометрические параметры Составляет +/- 50 мм по длине с каждой стороны.
Допускается стыковка имитации бруса, вагонки и половой доски По всему периметру стен дома (если ширина и длина дома более 6,0 метров). Вагонки и доски пола в каждой отдельной комнате.
Допуски по имитации бруса, вагонке, доске +/- 5 мм.
В стоимость включена Доставка комплекта материала в радиусе 500 км. от г. Пестова Новгородской области и сборка дома на вашем участке.
Гарантия 5 лет.
Бытовка строительная 2,0х3,0 м. каркасно-щитовая. Стоимость 23000 руб. Остаётся на участке Заказчика.
Туалет 1,0х1,0 м. каркасно-щитовой. Стоимость 12000 руб. Остаётся на участке Заказчика.
Генератор Стоимость аренды на весь срок строительства 15000 руб. ГСМ за счёт Заказчика.

Сооружение каркасного дома выполняется в двух видах: сразу под ключ и под усадку, когда дом отстаивается на протяжении определенного времени.

Зимой эксперты советуют строить дом в мороз, чтобы каркас не отсырел, в летний период - не под дождем.

Оптимальными для сада или дачи стали дома на винтовых сваях, у нас можно найти одноэтажные и полуторатажные варианты.

При условии, что дом строится для ПМЖ (постоянного проживания), советуем надежные и очень теплые дома на ленточных и плитных фундаментах.

Существует 2 размера утепления: 200 мм и 150 мм. Каркасные дома с толщиной утеплителя 200 мм получаются теплее, но несколько дороже.

Дополнительные услуги


Каркасник балконом и маленькой террасой, согласно плану 94 полутораэтажный с теплоизоляционной двускатной разновидностью крыши, обращает на себя повышенное внимание экологической безопасностью, за счет использования стружечных плит, теплоизоляционной ваты, что создает первоклассную теплоизоляцию, комфортный микроклимат в доме. Нормы жилища составляют 6х7 м., суммарная жилая площадь - 77 кв.м.. Наша организация в минимальные сроки создаст для вас каркасник по индивидуальному или типовому чертежу в Ялте в оптимальное для вас время года и на любом варианте грунта.

Популярные проекты


Дома из бруса с мансардой Дома из бруса 8х9 Каркасные дома более 100 кв.м.
хит продаж
Тип:
Общая площадь: 2
2939880
от 2799900
хит продаж
Тип: с балконом, с большой террасой
Общая площадь: 2
4931100
от 4696300
хит продаж
Тип: с террасой
Общая площадь: 2
2201520
от 2096700
Дома из бруса

Заказать или задать вопрос




Дома из бруса в Ялте
Отзывы из Яндекс Карт
4.9
111 отзывов
Дополнительные услуги 88%
2 154 оценок
Комплектации 89%
1 535 оценок
Планировки 90%
2 484 оценок
Проекты 93%
2 231 оценок
С
Юлия Блинова28.02.2025 г.
Я в восторге от своего нового брусового дома. Пахнет лесом. Дышится легко. Зимой было очень тепло. Летом прохладно. Компания надежная. Строили по договору. Все этапы фиксировали. Никаких проблем не возникло. Спасибо за мой прекрасный дом.
Отзывы из Google Карт
4.8
67 отзывов
Дополнительные услуги 88%
2 154 оценок
Комплектации 89%
1 535 оценок
Планировки 90%
2 484 оценок
Проекты 93%
2 231 оценок
С
Демьян Зеленин08.05.2025 г.
Решил построить баню и обратился в данную компанию, менеджер Александр подробно всё объяснил и помог выбрать оптимальный проект, строители работали быстро и аккуратно, теперь паримся с друзьями каждые выходные и получаем невероятное удовольствие.
Отзывы из 2гис
4.9
40 отзывов
Дополнительные услуги 88%
2 154 оценок
Комплектации 89%
1 535 оценок
Планировки 90%
2 484 оценок
Проекты 93%
2 231 оценок
С
Виталия Д.04.06.2025 г.
Строительство дома — это всегда стресс, но команда «Брус дома» сделала этот процесс лёгким и прозрачным; мне всё объясняли, показывали, советовались — и в итоге я получила тёплый, надёжный и очень красивый брусовой дом своей мечты.

Заказать или задать вопрос

Заказать звонок